Description
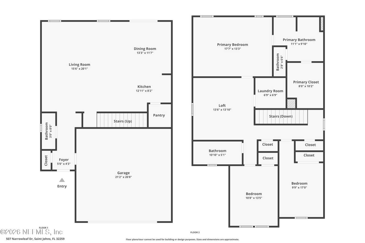
Resort-style living every day in this beautiful Sebastian floor plan, perfectly positioned on a prime lot with peaceful lake views right across the street and breathtaking sunsets from the front porch. The open-concept layout is ideal for everyday living and entertaining. The light and bright kitchen features 42'' cabinets, quartz countertops, a tile backsplash, all stainless steel appliances, and a new top-of-the-line gas stove and oven, along with a large island with breakfast seating. The kitchen flows seamlessly into the dining area and spacious family room, creating a warm and inviting space to gather. Upstairs, all bedrooms are thoughtfully arranged, including a versatile bonus room perfect for a home office, playroom, or media room. The owner's suite is generously sized, offering a spacious walk-in closet and a spa-inspired owner's bath complete with a garden tub, separate walk-in shower, and dual vanity sinks. Step outside to enjoy the covered lanai, extended paver patio, and fully fenced backyard, ideal for relaxing or entertaining outdoors. Additional highlights include a garage with a water softener and plenty of storage, including hanging storage units. Living in RiverTown means enjoying unmatched amenities, including the RiverClub with waterfront dining, boardwalk, and Oasis pool, as well as the RiverHouse and the RiverLodge featuring a lazy river, fitness center, and kayaking lake. Residents also enjoy tennis, pickleball, yoga, concerts at the amphitheater, scenic walking and golf-cart paths, nearby dog parks, pools, café, and the highly desirable K-8 Hallowes Cove Academy. This home truly checks all the boxes, come see why RiverTown is such a wonderful place to call home.
-
3BEDS
-
0.1ACRES
-
2BATHS
-
11/2 BATHS
-
2,079SQFT
-
$219$/SQFT
School Information
Description
Resort-style living every day in this beautiful Sebastian floor plan, perfectly positioned on a prime lot with peaceful lake views right across the street and breathtaking sunsets from the front porch. The open-concept layout is ideal for everyday living and entertaining. The light and bright kitchen features 42'' cabinets, quartz countertops, a tile backsplash, all stainless steel appliances, and a new top-of-the-line gas stove and oven, along with a large island with breakfast seating. The kitchen flows seamlessly into the dining area and spacious family room, creating a warm and inviting space to gather. Upstairs, all bedrooms are thoughtfully arranged, including a versatile bonus room perfect for a home office, playroom, or media room. The owner's suite is generously sized, offering a spacious walk-in closet and a spa-inspired owner's bath complete with a garden tub, separate walk-in shower, and dual vanity sinks. Step outside to enjoy the covered lanai, extended paver patio, and fully fenced backyard, ideal for relaxing or entertaining outdoors. Additional highlights include a garage with a water softener and plenty of storage, including hanging storage units. Living in RiverTown means enjoying unmatched amenities, including the RiverClub with waterfront dining, boardwalk, and Oasis pool, as well as the RiverHouse and the RiverLodge featuring a lazy river, fitness center, and kayaking lake. Residents also enjoy tennis, pickleball, yoga, concerts at the amphitheater, scenic walking and golf-cart paths, nearby dog parks, pools, café, and the highly desirable K-8 Hallowes Cove Academy. This home truly checks all the boxes, come see why RiverTown is such a wonderful place to call home.
© 2026 Northeast Florida Multiple Listing Service, Inc. All rights reserved. The data relating to real estate for sale on this web site comes in part from the Internet Data Exchange (IDX) program of the Northeast Florida Multiple Listing Service, Inc. Real estate listings held by brokerage firms other than Palm 3 Realty are marked with the listing broker’s name and detailed information about such listings includes the name of the listing brokers. Data provided is deemed reliable but is not guaranteed. Data last updated 2026-03-16T18:24:51.163.
Digital Millennium Copyright Act
