Description
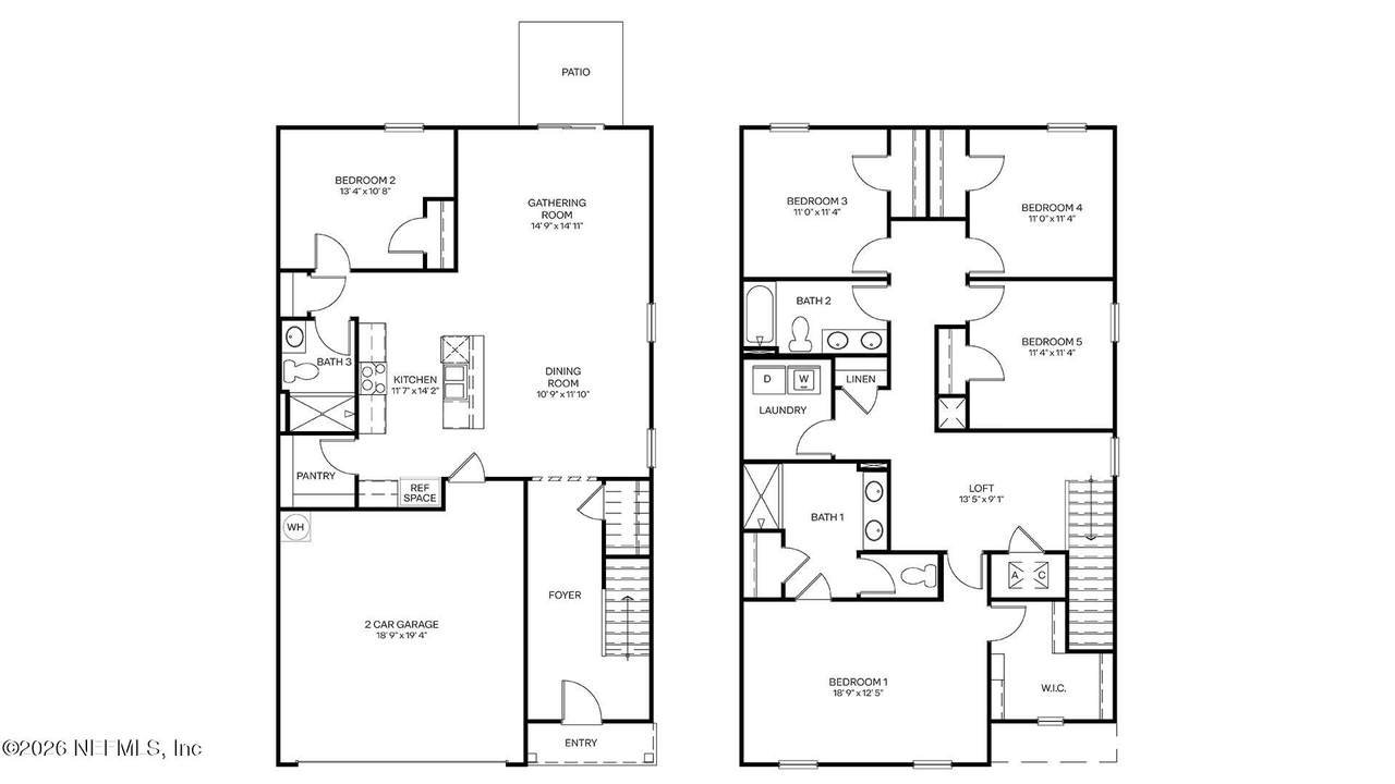
The Robie floor plan offers spacious, flexible living with 2,373 square feet of beautifully designed space. This two-story home features 5 bedrooms, 3 bathrooms, and a 2-car garage--perfect for growing families or multigenerational households needing room to spread out. Natural light fills the home thanks to numerous well-placed windows, creating a bright and inviting atmosphere throughout. The heart of the home showcases an open-concept gathering room, dining area, and kitchen seamlessly connected for modern living and effortless entertaining. The large quartz island provides abundant counter space for meal prep, casual dining, or hosting friends and family. With generous cabinetry and thoughtful layout, this kitchen is both functional and stylish. A secondary bedroom and full bath on the first floor make an ideal setup for guests, extended family, or a private home office--offering flexibility for multigenerational living.
-
5BEDS
-
N/AACRES
-
3BATHS
-
01/2 BATHS
-
2,363SQFT
-
$170$/SQFT
School Information
Description
The Robie floor plan offers spacious, flexible living with 2,373 square feet of beautifully designed space. This two-story home features 5 bedrooms, 3 bathrooms, and a 2-car garage--perfect for growing families or multigenerational households needing room to spread out. Natural light fills the home thanks to numerous well-placed windows, creating a bright and inviting atmosphere throughout. The heart of the home showcases an open-concept gathering room, dining area, and kitchen seamlessly connected for modern living and effortless entertaining. The large quartz island provides abundant counter space for meal prep, casual dining, or hosting friends and family. With generous cabinetry and thoughtful layout, this kitchen is both functional and stylish. A secondary bedroom and full bath on the first floor make an ideal setup for guests, extended family, or a private home office--offering flexibility for multigenerational living.
© 2026 Northeast Florida Multiple Listing Service, Inc. All rights reserved. The data relating to real estate for sale on this web site comes in part from the Internet Data Exchange (IDX) program of the Northeast Florida Multiple Listing Service, Inc. Real estate listings held by brokerage firms other than Palm 3 Realty are marked with the listing broker’s name and detailed information about such listings includes the name of the listing brokers. Data provided is deemed reliable but is not guaranteed. Data last updated 2026-03-16T18:24:51.163.
Digital Millennium Copyright Act
